-
-
-
Tổng tiền thanh toán:
-
Chứng nhận 1
ISO-9001-587Tiêu chuẩn thiết kế, chế tạo: TCVN 8366:2010; 6008:2010
Tiêu chuẩn thử nghiệm: TCVN 6154:1996
Đặc điểm cấu tạo: Thân trụ, hai đáy cong dạng elip, đặt đứng hoặc nằm
Vật liệu: Thép tấm A36/A516/SS400/Q345B (hoặc vật liệu khác)
Áp suất thiết kế: 10kg/cm2 (hoặc mức áp suất khác theo yêu cầu)
Áp suất thiết kế: 8.5kg/cm2 (hoặc mức áp suất khác theo yêu cầu)
Bình chứa khí nén hay còn được gọi là bình tích áp, bình tích khí nén là một bộ phận quan trọng trong hệ thống để cung cấp khí nén và được dùng để tích trữ nguồn khí nén áp suất cao đi ra từ bộ phận đầu máy nén.

Nhiệm vụ chính của bình chứa khí nén là tích trữ lượng khí nén mà máy nén khí nén vào, lên tới một áp suất đặt sẵn. Sau đó khí nén trong bình được lấy cho hệ thống khi có nhu cầu sử dụng, nhằm duy trì áp suất làm việc trong hệ thống, khiến áp suất hệ thống không giảm xuống một cách đột ngột gây ảnh hưởng đến quá trình làm việc của thiết bị và máy móc sử dụng khí nén.
Bình chứa khí nén còn đóng vai trò như một thiết bị có tác dụng làm ngưng nước, các bụi bẩn và góp phần làm giảm nhiệt độ của khí hoặc làm mát dầu.
Khi áp suất trong bình đạt tới ngưỡng cài đặt phía trên, máy nén khí sẽ “ra tải”, đây là trạng thái máy nén khí không nén khí vào bình chứa nữa, máy nén khí chỉ chạy chế độ không tải, giảm dòng điện và giảm nhiệt độ của máy xuống. Từ đó giúp máy nén khí được “nghỉ ngơi”, tăng tuổi thọ và độ bền của máy nén khí.
Khi bình khí nén được lắp ngay sau máy nén khí và trước máy sấy khí nén thì sẽ giúp giảm tải cho máy sấy khí. Vì khi đó, khí nén có nhiệt độ cao từ máy nén khí, sau khi qua bình nén khí sẽ được giảm nhiệt xuống một phần trước khi đi vào máy sấy khí. Do đó, máy sấy khí sẽ hoạt động hiệu quả, làm lạnh và tách nước khỏi khí nén tốt hơn.
Khí nén đi vào bình nén khí đang ở nhiệt độ cao bị giảm nhiệt xuống, kết hợp với lực ly tâm của dòng khí di chuyển dạng xoắn ốc sẽ khiến nước ngưng tụ xuống đáy bình. Do đó, sau một thời gian máy nén khí chạy, khi mở van xả đáy bình khí nén chúng ta thường thấy có lượng nước nhất định chảy ra. Vì thế bình tích khí nén có thể tách nước một phần trong khí nén giúp khí nén khô hơn.
*Việc dự phòng và tích trữ khí nén ở một áp suất cao tại các doanh nghiệp sản xuất là rất quan trọng để tránh được trường hợp máy bơm khí nén bị hỏng hoặc là bị cắt điện.

|
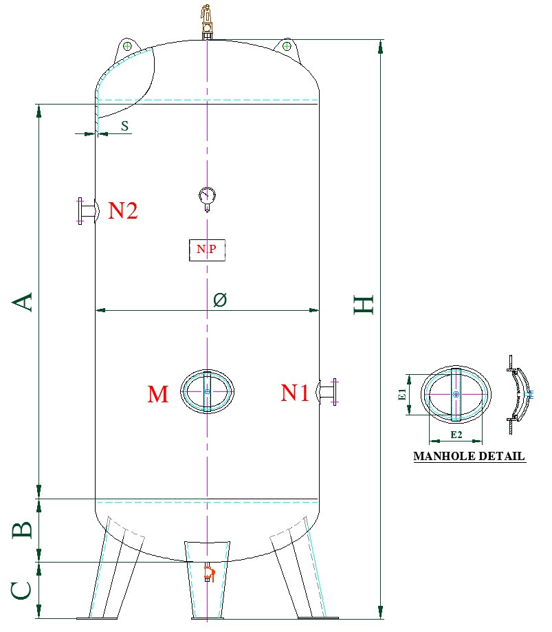
Kích thước chính của sản phẩm (mm) |
|
|
Ø |
325 |
|
A |
600 |
|
B |
85 |
|
C |
190 |
|
S |
4 |
|
H |
1050 |
|
Các chi tiết bắt chặt vào bình |
|
|
Ống khí vào |
M21 - Số lượng 1 (hoặc nhiều hơn theo yêu cầu) |
|
Ống khí ra |
M21 - Số lượng 1 (hoặc nhiều hơn theo yêu cầu) |
|
Ống van an toàn |
M21 - Số lượng 1 |
|
Ống xả đáy |
M21 - Số lượng 1 |
|
Ống bắt đồng hồ đo áp |
M18 |
*Ghi chú:

|
Thông số kỹ thuật bình khí nén |
Tiêu chuẩn |
|
Tiêu chuẩn thiết kế, chế tạo |
TCVN 8366:2010; 6008:2010 |
|
Tiêu chuẩn thử nghiệm |
TCVN 6154:1996 |
|
Đặc điểm cấu tạo |
Thân trụ, hai đáy cong dạng elip, đặt đứng hoặc nằm |
|
Vật liệu |
Thép tấm A36/A516/SS400/Q345B (hoặc vật liệu khác) |
|
Áp suất thiết kế |
10kg/cm2 (hoặc mức áp suất khác theo yêu cầu) |
|
Áp suất làm việc |
8.5kg/cm2 (hoặc mức áp suất khác theo yêu cầu) |
|
Môi chất |
Không khí nén hoặc nước |
|
Đặc tính |
Không độc |
|
Nhiệt độ tối đa |
100 độ C |
|
Chi tiết bắt chặt trên thân bình |
Ống thép hàn dính trên thân |
Có thể bạn quan tâm:
Là một thiết bị quan trọng trong doanh nghiệp, vì vậy khi sử dụng người dùng cần phải tuần thủ theo những nguyên tắc cần thiết để đảm bảo an toàn cho người lao động cũng như nâng cao được hiệu quả làm việc của bình nén khí. Một số lưu ý khi sử dụng bình chứa nén khí dung tích 50L như sau:
- Bình chứa khí nén trước khi đưa vào sử dụng phải được kiểm định và đảm bảo tiêu chuẩn theo quy định. Ngoài ra phải định kỳ kiểm tra kỹ thuật an toàn để đảm bảo an toàn tuyệt đối cho doanh nghiệp.
- Tuyệt đối không được để bình chứa khí nén gần những nơi dễ cháy, nổ hoặc nguồn nhiệt cao.
- Thường xuyên kiểm tra tình trạng vận hành của hệ thống van an toàn cũng như tình trạng của bình chứa khí.
- Không được tự ý di chuyển bình chứa khí. Trong trường hợp phải di chuyển cần phải xả hết khí trong bình sau đó tiến hành ngắt điện.
- Người sử dụng bình chứa khí nén phải có đủ sức khỏe, được huấn luyện bài bản, có kiến thức chuyên môn và đủ 18 tuổi trở lên.

Hiện nay trên thị trường có rất nhiều doanh nghiệp cung cấp sản phẩm bình chứa khí nén. Baker tự hào là đơn vị chuyên sản xuất, cung cấp các sản phẩm bình chứa khí chất lượng cao.
- Các sản phẩm bình áp lực đực thiết kế và chế tạo theo TCVN 8366:2010, đạt tiêu chuẩn ISO 9001 - 2010.
- Quy trình sản xuất sản phẩm được quản lý chất lượng nghiêm ngặt, toàn bộ sản phẩm đều được siêu âm mối hàn và thử áp lực 100% trước khi xuất xưởng.
- Sản phẩm được sản xuất trên dây chuyền hàn tự động, hàn hai mặt phía trong và bên ngoài. Bên cạnh đó, sản phẩm cũng được sơn chống rỉ epoxy bên trong và ba lớp sơn bên ngoài để gia tăng độ bền và tuổi thọ cho sản phẩm.

Chúng tôi nhận làm theo yêu cầu của khách hàng, nhưng tại xưởng đã có vài mẫu phổ thông và cơ bản cho khách cần có sẵn
Miễn phí giao hàng toàn quốc
Tiếp tục mua hàng