-
-
-
Tổng tiền thanh toán:
-
Chứng nhận 1
ISO-9001-587Tiêu chuẩn thiết kế, chế tạo: TCVN 8366:2010; 6008:2010
Tiêu chuẩn thử nghiệm: TCVN 6154:1996
Đặc điểm cấu tạo: Thân trụ, hai đáy cong dạng elip, đặt đứng hoặc nằm
Vật liệu: Thép tấm A36/A516/SS400/Q345B (hoặc vật liệu khác)
Áp suất thiết kế: 10kg/cm2 (hoặc mức áp suất khác theo yêu cầu)
Áp suất thiết kế: 8.5kg/cm2 (hoặc mức áp suất khác theo yêu cầu)
Ống khí vào, ống khí ra: 150A
Trên thị trường hiện nay có nhiều nhà phân phối độc quyền bình chứa khí nén dung tích 8000l chất lượng đáp ứng người tiêu dùng. Tuy nhiên, để mua được sản phẩm phù hợp với nhu cầu sử dụng bạn cần biết những thông số cơ bản của chúng. Hãy theo dõi bài viết sau để biết thêm thông tin.
Vỏ bình là phần quan trọng nhất của bình chứa khí nén dung tich 8000l. Chất liệu làm vỏ bình phải đảm bảo việc duy trì áp lực, chịu áp của khí nén trong bình.
Để thật chắc chắn chất liệu được chọn làm vỏ bình là thép tấm. Vì thép tấm là hợp kim sắt và cacbon nên đảm bảo tính bền lâu dài, hạn chế nhiều nguy hiểm trong quá trình dùng bình chứa khí nén dung tích 8000l.
Ngoài ra, mặt bên ngoài của vỏ bình được sử dụng công nghệ hàn điện tử Mig để hoàn thiện các mối ghép sau đó được gia công thêm 2 lớp sơn chống gỉ chắc chắn.

Vỏ ngoài của bình chứa khí nén phải làm từ chất liệu thép tấm
Cấu tạo lõi bình chứa khí nén dung tích 5000l gồm 2 đầu: Đầu vào và đầu ra của dòng khí. Ống khí vào được nối bằng hình thức nối ren đáp ứng chức năng ổn định dòng khí ra vào của bình khí nén. Để phục vụ sức chịu đựng của áp lực hoạt động của bình chứa khí nén người ta sẽ bọc một lớp cao su ở đầu ống.

Cấu tạo bên trong lõi bình chứa khí nén dung tích 8000l
Để hoạt động đảm bảo an toàn khi sử dụng bình chứa khí thì không thể thiếu được những phụ kiện đi kèm như: Đồng hồ đo áp lực, hệ thống van an toàn, van xả đáy bình. Những thiết bị này giúp hoạt động của bình chứa khí nén ổn định ở mức cao nhất.

Phụ kiện đi kèm của bình chứa khí nén
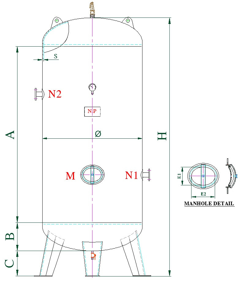
Sau đây là các thông số cơ bản của bình chứa khí nén dung tích 8000l:
|
Kích thước chính của sản phẩm (mm) |
|
|
Ø |
1700 |
|
A |
3020 |
|
B |
380 |
|
C |
300 |
|
S |
10 |
|
H |
4120 |
|
Các chi tiết bắt chặt vào bình |
|
|
Ống khí vào |
150A |
|
Ống khí ra |
150A |
|
Ống van an toàn |
M42 - Số lượng 1 |
|
Ống van xả đáy |
M27- Số lượng 1 |
|
Ống bắt đồng hồ đo áp |
M21 |
*Ghi chú:
|
Thông số kỹ thuật bình khí nén |
Tiêu chuẩn |
|
Tiêu chuẩn thiết kế, chế tạo |
TCVN 8366:2010; 6008:2010 |
|
Tiêu chuẩn thử nghiệm |
TCVN 6154:1996 |
|
Đặc điểm cấu tạo |
Thân trụ, hai đáy cong dạng elip, đặt đứng hoặc nằm |
|
Vật liệu |
Thép tấm A36/A516/SS400/Q345B (hoặc vật liệu khác) |
|
Áp suất thiết kế |
10kg/cm2 (hoặc mức áp suất khác theo yêu cầu) |
|
Áp suất làm việc |
8.5kg/cm2 (hoặc mức áp suất khác theo yêu cầu) |
|
Môi chất |
Không khí nén hoặc nước |
|
Đặc tính |
Không độc |
|
Nhiệt độ tối đa |
100 độ C |
|
Chi tiết bắt chặt trên thân bình |
Ống thép hàn dính trên thân |
|
Ống khí vào |
Số lượng 1 (hoặc nhiều hơn theo yêu cầu) |
|
Ống khí ra |
Số lượng 1 (hoặc nhiều hơn theo yêu cầu) |
|
Ống van an toàn |
Số lượng 1 |
|
Ống xả đáy |
Số lượng 1 |
Không phải ai cũng có thể sử dụng loại bình chứa khí nén này, để vận hành nó bạn cần có kỹ thuật chuẩn môn, kiến thức và nắm được những nguyên tắc khi sử dụng.
Sau đây là một số nguyên tắc sử dụng mẫu bình chứa khí nén dung tích 8000l:
Hiện nay trên thị trường có hàng trăm đơn vị lớn nhỏ cung cấp các sản phẩm bình chứa khí. Tuy nhiên, không phải đơn vị nào cũng là bình chứa khí chất lượng.
Baker là đơn vị cung cấp các sản phẩm bình chứa khí nén chất lượng cao, tự hào là sự lựa chọn của các khách hàng, doanh nghiệp trong nhiều năm qua.
Để khách hàng yên tâm về sản phẩm, chúng tôi cam kết:
Trên đây là những chia sẻ về những thông số cơ bản cũng như cấu tạo và nguyên tắc sử dụng bình chứa khí nén dung tích 8000l. Rất mong quý bạn đọc bớt chút thời gian tham khảo để có kiến thức lựa chọn loại bình này.
Miễn phí giao hàng toàn quốc
Tiếp tục mua hàng